| 地址 | 東京都目黑區上目黑3 | ||
| 價格 | 人民幣:1591萬 | 租金回報 | / |
| 建筑年代 | 預計2022年11月上旬竣工 | 建筑結構 | 鋼筋混凝土造 |
| 實際面積 | 149.43㎡~ | 土地面積 | / |
| 陽臺面積 | 5.05㎡~ | 車庫面積 | / |
| 總戶數 | 19戶 | 所在層 | / |
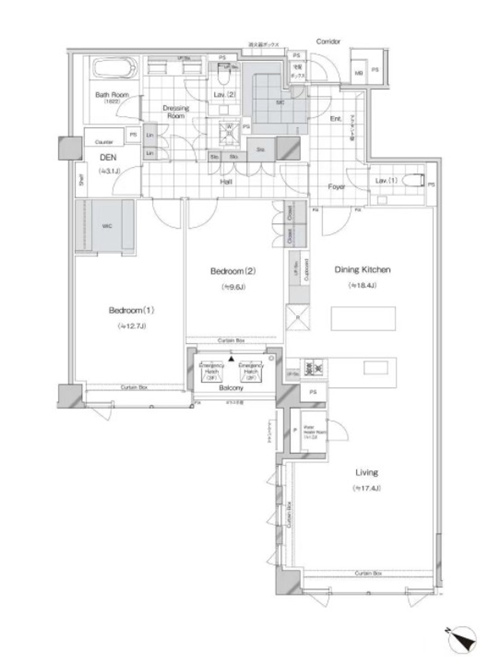
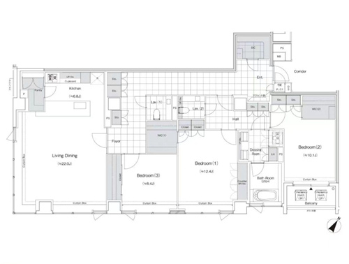
| 房型 | 2室1廳+WIC+SIC | 朝向 | / |
| 租賃情況 | / | 租金 | / |
| 管理費 | 93,200日元/月~ | 修繕費 | 29,900日元/月~ |
| 建蔽率 | / | 容積率 | / |
| 用途地域 | 第一種低層住居專用地域 | 土地權利 | 永久產權 |
| 交通 | ①東京メトロ日比谷線【中目黑】站徒步6分鐘 ②東急東橫線【中目黑】站徒步6分鐘 | ||
預計2022年11月上旬竣工的高級公寓,販賣戶數2戶,1,591萬~2,676萬人民幣,永久產權,符合新抗震標準。位于東京都目黑區上目黑區域,低層建筑林立的高級住宅區,東京地鐵日比谷線·東急東橫線【中目黑】站徒步6分鐘的好位置,也是東京地鐵日比谷線始發站、東急東橫線快車停車站,交通順暢,乘車直通澀谷站3分鐘,直通六本木站8分鐘,直通新宿三丁目站10分鐘,直通銀座站18分鐘,可以享受在這些時尚區域購物和外出就餐。公寓周邊除了超市之外,便利店,藥妝店,咖啡店,郵局等生活便利設施也很充實,附近還有櫻花樹自然豐富的目黑川。鋼筋混凝土造地上3層地下1層建筑,以水平延伸的設計為特征與街道的美麗景觀完美地協調在一起,物件分別為2室1廳及3室1廳,149.43㎡~175.09㎡,追求寬裕的房間布局,配備了系統廚具,可步入式衣帽間,鞋柜,衛浴設備等,豐富舒適的生活空間。海外客戶可以申請日本銀行貸款購房,目前有兩種方式:1.需要在日本設立公司,以法人名義購買,貸款額度約60-70%、還款周期25-35年、貸款利率1.5%起。2.個人名義購買,海外客戶可以申請日本個人抵押貸款購房,不需要設立公司,貸款額度約50-60%,還款周期15-25年,貸款年齡65歲以內,貸款額度不能低于2000萬日元,貸款利率2.7%起。詳情歡迎咨詢。
1. 地理與基本信息:目黑區地處東京都西南部,北鄰澀谷區,東接港區,南靠品川區,西毗世田谷區。面積約14.67平方公里,2023年人口約28萬,是相對寧靜的住宅區,同時也具備商業區的屬性。這里距離市中心近,自然與城市功能和諧共存。
2. 主要區域及其特色
• 目黑站周邊:目黑站有JR山手線、東京地鐵南北線、都營地鐵三田線經過,是交通樞紐。目黑銀座商店街深受當地居民喜愛,分布著眾多餐飲店和零售店。目黑川是著名的賞櫻地,春天會吸引大量游客前來賞櫻。
• 自由之丘(Jiyūgaoka):自由之丘站是東急東橫線和東急大井町線的交匯點,這里是高級住宅區,有許多精品店和咖啡館。自由之丘銀座商店街個性店鋪林立,可盡情享受時尚和美食。
• 中目黑(Nakameguro):中目黑站有東急東橫線和東京地鐵日比谷線經過,是時尚的咖啡館和餐廳聚集區。中目黑的櫻花大道沿目黑川而建,櫻花盛放時景色優美,是春季熱門景點。
• 下目黑(Shimo-Meguro):是寧靜的住宅區,零星分布著一些歷史建筑和寺院。
• 五本木(Gohongi):五本木公園綠樹成蔭,是當地居民休閑放松的好去處。
3. 文化與歷史:目黑區自江戶時代就已存在,其中目黑不動尊(瀧泉寺)是著名的歷史寺院。目黑區立目黑歷史博物館可以讓人們了解該區的歷史和文化。
4. 觀光景點:目黑川的櫻花是日本數一數二的賞櫻勝地,春季吸引大量游客。目黑不動尊正式名稱為瀧泉寺,以結緣和消災聞名。碑文谷公園自然環境優美,秋季的紅葉景色尤其美麗。
5. 交通出行:鐵路有JR山手線、東京地鐵南北線、日比谷線、東急東橫線、大井町線、都營地鐵三田線等。主要車站有目黑站、自由之丘站、中目黑站等。區內公交線路眾多,出行便利。
6. 生活環境:教育資源豐富,從幼兒園到高中的教育機構齊全,青山學院大學的部分校區也在此。醫療設施完備,有目黑區立綜合醫院、東京醫療中心等。商業方面,自由之丘、中目黑和目黑站周邊匯聚了許多個性商業設施,生活便利性高。
7. 活動與節慶:目黑川迷你賞櫻游船在春季賞櫻季舉辦,可從河上欣賞櫻花。目黑區民節是當地居民參與的大型活動。
8. 現代的目黑區:目黑區是自然與城市開發相協調的區域,即使不是櫻花季也十分宜居。再開發持續推進,新的商業設施和住宅不斷涌現,區域活力不斷提升。
總結:目黑區以自然環境優美的公園和櫻花大道聞名,生活環境優越。自由之丘和中目黑可享受時尚與美食,目黑站周邊兼具商業區功能。這里歷史與現代交融,無論是居住還是游覽都極具魅力。如果您想了解特定區域或觀光景點的更多信息,歡迎告知。
您會在一個工作日內得到置業顧問的聯絡




