| 地址 | 東京都中央區湊1 | ||
| 價格 | 人民幣:2248萬 | 租金回報 | 4.0% |
| 建筑年代 | 預計2022年3月竣工 | 建筑結構 | 鋼筋混凝土造 |
| 實際面積 | 263.27㎡ | 土地面積 | 56.92㎡ |
| 陽臺面積 | / | 車庫面積 | / |
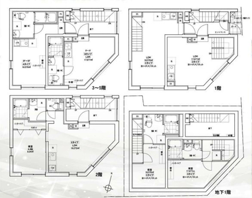
| 總戶數 | 9戶 | 所在層 | 5層 付地下1層 |
| 房型 | 1居室 | 朝向 | / |
| 租賃情況 | 建筑中 | 租金 | 約15,300,000日元/年 |
| 管理費 | / | 修繕費 | / |
| 建蔽率 | 80% | 容積率 | 500% |
| 用途地域 | 商業地域 | 土地權利 | 永久產權 |
| 交通 | ①東京メトロ日比谷線【八丁崛】站徒步4分鐘 ②JR京葉線【八丁崛】站徒步4分鐘 | ||
預計2022年3月竣工,永久產權,符合新抗震標準。位于東京都中央區,2線可以利用,距【八丁崛】站均徒步4分鐘,通勤通學,購物都很便利。公寓鋼筋混凝土造5層付地下1層,配置門禁,快遞箱等共用設施,全9戶,充實的室內配套設備,有附帶按摩浴缸和桑拿的房間。海外客戶可以申請日本銀行貸款購房,目前有兩種方式:1.需要在日本設立公司,以法人名義購買,貸款額度約60-70%、還款周期25-35年、貸款利率1.5%起。2.個人名義購買,海外客戶可以申請日本個人抵押貸款購房,不需要設立公司,貸款額度約50-60%,還款周期15-25年,貸款年齡65歲以內,貸款額度不能低于2000萬日元,貸款利率2.7%起。詳情歡迎咨詢。
1. 地理與基本信息:中央區地處東京都東部,隔隅田川與江東區、墨田區相望,南鄰港區,北接文京區和千代田區。面積約10.21平方公里,2023年人口約16萬。由于其濃厚的商業區屬性,白天人口數量遠多于夜間。這里不僅是日本經濟活動的核心,還擁有眾多歷史遺跡,是備受歡迎的觀光勝地。
2. 主要區域及其特色
• 銀座(Ginza):匯聚了全球知名的高端品牌店。銀座三越、松屋銀座、銀座六本木等百貨公司坐落于此。歌舞伎座是體驗日本傳統文化的劇場。
• 日本橋(Nihonbashi):日本橋是一座歷史悠久的橋梁,被譽為“日本道路的起點”。三越本店是日本最古老的百貨商店之一。COREDO室町是利用歷史建筑改造的商業設施。
• 京橋(Kyōbashi):東京站是日本鐵路的樞紐,眾多新干線和普通鐵路線在此始發和終到。丸之內大廈是集辦公與商業設施于一體的綜合建筑。
• 筑地(Tsukiji):筑地市場曾是世界最大的批發市場,現雖已遷至豐洲,但外市場仍保留。筑地場外市場可品嘗到新鮮的海產品和壽司。
• 月島(Tsukishima):月島文字燒街匯聚了提供文字燒和御好燒的眾多餐飲店。
• 浜離宮恩賜庭園(Hama-rikyū Gardens):作為江戶時代的大名庭園,可在此欣賞自然與歷史的交融之美。
3. 文化與歷史:中央區自江戶時代起就是商業中心,尤其是日本橋,曾是江戶五街道的起點。江戶東京博物館(位于墨田區,但從中央區前往便利)可讓人了解從江戶時代到現代的東京歷史。
4. 觀光景點:皇居外苑是皇居周邊的觀光地,二重橋和皇居東御苑頗受歡迎。三菱一號館美術館展示近代美術作品。COREDO室町露臺是傳統與現代融合的商業設施。
5. 交通出行:東京站匯集了新干線、JR東日本、東京地鐵、都營地鐵等眾多線路。主要車站有東京站、銀座站、日本橋站、筑地市場站等。區內有方便出行和觀光的公交線路。
6. 生活環境:中央區的中小學數量較少,部分居民會選擇周邊區的學校。醫療設施完備,有圣路加國際醫院、東京慈惠會醫科大學附屬醫院等大型醫療機構。商業發達,銀座和日本橋的購物選擇極為豐富。
7. 活動與節慶:銀座夏日祭是每年夏天舉辦的當地節日。日本橋街道慶典是由商店街聯合舉辦的活動。
8. 現代的中央區:中央區在保持商業中心地位的同時,不斷提升作為觀光地的吸引力。高層建筑和再開發項目持續推進,丸之內和日本橋地區的現代化進程加快。國際化色彩濃厚,吸引了大量外國游客和商務人士。
總結:中央區是東京歷史與經濟緊密相連的獨特區域,無論是作為觀光地還是商業區都極具魅力,是東京傳統與現代交匯的代表。這里既適合居住也適合觀光,但物價和房租相對較高。如果您想了解特定區域或觀光景點的更多信息,歡迎告知。
您會在一個工作日內得到置業顧問的聯絡




