| 地址 | 東京都小平市花小金井南町 | ||
| 價格 | 人民幣:2792萬 | 租金回報 | 6.0% |
| 建筑年代 | 1997年9月 | 建筑結構 | 鋼筋混凝土造 |
| 實際面積 | 1405.85㎡ | 土地面積 | 984.79㎡ |
| 陽臺面積 | / | 車庫面積 | / |
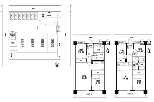
| 總戶數 | 20戶 | 所在層 | 1-5 |
| 房型 | 2室1廳×10 3室1廳×10 | 朝向 | / |
| 租賃情況 | / | 租金 | 約2,832萬日元/年/滿室 |
| 管理費 | / | 修繕費 | / |
| 建蔽率 | 80%.60%.60% | 容積率 | 400%.200%.200% |
| 用途地域 | 商業地域.第一種中高層住居地域.第二種中高層住居地域 | 土地權利 | 永久產權 |
| 交通 | ①西武新宿線【花小金井】站徒步7分鐘 | ||
1997年9月建成,永久產權,符合新抗震標準。位于東京都小平市,距西武新宿線【花小金井】站徒步7分鐘,乘車至新宿站,池袋站約30分鐘左右,車站前商業設施豐富,いなげや超市以外,有120家店鋪組成的生鮮食品和各專賣店鱗次櫛比的商店街,還有夏日祭等各種各樣的活動,氣氛十分活躍,另外從車站北口,公寓步行3分鐘的地方還有PEACOCK STORE食品超市,從公寓步行8分鐘范圍內有中小學校,幼兒園,保育園等各種教育機構,稍微走一點,有一個東京都內屈指可數廣闊面積的「都立小金井公園」,擁有草坪廣場,自行車道,棒球場等無論年齡大小都能享受的舒適居住環境。公寓東側約6m公道,西側約4m私道,鋼筋混凝土造5層,設置電梯,門禁門,防犯監視器,8臺停車位,全20戶,2室1廳及3室1廳兩種戶型,室內生活配套設施齊全,衛浴獨立,收納豐富。海外客戶可以申請日本銀行貸款購房,目前有兩種方式:1.需要在日本設立公司,以法人名義購買,貸款額度約60-70%、還款周期25-35年、貸款利率1.5%起。2.個人名義購買,海外客戶可以申請日本個人抵押貸款購房,不需要設立公司,貸款額度約50-60%,還款周期15-25年,貸款年齡65歲以內,貸款額度不能低于2000萬日元,貸款利率2.7%起。詳情歡迎咨詢。
一、地理與基本信息
1. 位置:地處東京都西部的多摩地區,北鄰東村山市,東接小金井市,南靠國分寺市,西連立川市。
2. 面積:約20.59平方公里。
3. 人口:大約20萬人(截至2023年的估算),是一座氛圍相對寧靜的住宅城市。
4. 特點:以其綠意盎然的環境和完善的教育設施而廣為人知。
二、主要區域及其特點
1. 小平(Kodaira)
• 小平站:西武國分寺線從此經過,作為城市的中心地帶,商店街和公共設施在此聚集。
• 小平銀座商店街:深受當地居民喜愛的商店街,日常生活所需的物品在這里都能買到。
2. 一橋學園(Ichigaya Gakuin)
• 一橋學園站:西武國分寺線途經此地。這里教育機構和住宅區眾多。
• 一橋學園前商店街:街道兩旁排列著許多面向學生和家庭的店鋪。
3. 小川(Ogawa)
• 小川站:西武國分寺線經過,周邊是一片寧靜的住宅區。
• 小川公園:自然環境優越的公園,配備了豐富的兒童游樂場所和運動設施。
三、文化與歷史
1. 小平市是戰后迅速發展起來的新興住宅區。
2. 小平市鄉土資料館:通過這個設施,能夠深入了解小平市的歷史和文化。
四、觀光景點
1. 小平故鄉村(小平ふるさと村):在這里可以體驗農業活動,進行自然觀察。
2. 小平中央公園:這是一個大型公園,體育設施和活動廣場一應俱全。
3. 小平靈園:位于自然環境中的寧靜靈園,同時也以賞櫻勝地而聞名。
五、交通
1. 鐵路:西武國分寺線是主要的交通線路。
2. 主要站點:包括小平站、一橋學園站、小川站等。
3. 公交:乘坐公交在市內出行十分便利,尤其是從小平站出發的公交線路非常完善。
六、生活環境
1. 教育:從幼兒園到高中,教育機構極為完備。特別是東京學藝大學附屬小平中學和高中等,其教育環境備受贊譽。
2. 醫療:小平市保健所、東京女子醫科大學附屬小平醫院等醫療設施齊全。
3. 商業:各個區域都有商店街和超市,生活便利性很高。
七、活動與節日
1. 小平市故鄉節(小平市ふるさと祭り):這是當地居民齊聚一堂的盛大活動。
2. 小平櫻花節(小平桜まつり):在小平靈園舉辦的賞櫻節日活動。
八、現代的小平市
1. 小平市自然環境優越,尤其受到有孩子家庭的青睞,是理想的居住之地。
2. 教育設施完備,作為文教地區也頗具知名度。
3. 交通便利,可便捷到達東京市中心,且生活所需設施一應俱全,被認為是一座宜居城市。
總結:小平市以其綠意盎然的環境和完善的教育設施為顯著特點。小平站和一橋學園站周邊的商業設施,以及各處寧靜的住宅區獨具特色,生活所需設施完備。交通便利,前往東京市中心方便,深受重視子女教育和生活品質的人們喜愛。如果您想進一步了解特定區域或觀光景點的詳細信息,請隨時告知。
您會在一個工作日內得到置業顧問的聯絡




